Denkmalgeschütztes Einfamilienhaus in zentraler Lage
Denkmalgeschütztes Einfamilienhaus in zentraler Lage
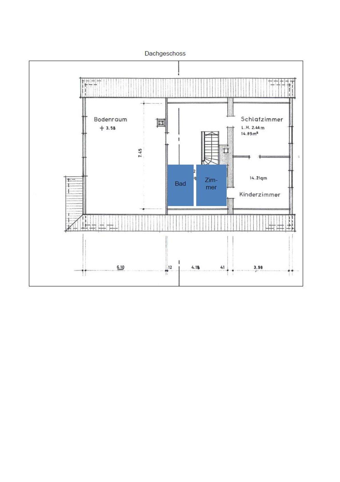
Das um 1678 errichtete Haus wurde einschaliger ungedämmter Fachwerkbauweise erstellt. Die Gefache sind heute mit Backsteinen ausgemauert und verputzt. Das Gebäude ist teilunterkellert und das Dachgeschoss ist teilweise ausgebaut. Das Krüppelwalmdach ist mit Tonziegel eingedeckt. Die Fenster haben Holzrahmen mit Einfachverglasung, tlw. Zweifachisolierverglasung, tlw. zwei Fenster hintereinander mit Einfachverglasung, Dachflächenfenster, Sprossenhohlrahmen Die Dachflächen wurden im ausgebauten Bereich nachträglich isoliert und die Heizung wurde im Jahr 2006 erneuert.
Folgende Baumängel / Bauschäden sind bekannt:
Risse im Innen-/Außenmauerwerk, Bodenunebenheiten baualtersbedingt, Fenster erneuerungsbedürftig, Modernisierungsrückstau: Aufgrund der tlw. eingeschränkten Sichtverhältnisse im Dachboden können Aussagen zu Material- oder Konstruktionsschäden bzw. Schädlingsbefall der Dachverbandhölzer nur eingeschränkt erfolgen - nach äußerem Anschein liegen keine Schäden vor.
Sonstiges
Nutzungsbeschränkungen:
a) Auf dem Grundstück dürfen kein Parkplatz, keine Gastwirtschaft, Diskothek, Spielhalle, Vergnügungsstätte mit sexuellem Charakter, kein Sexshop, keine sonstigen Anlagen und Betriebe, die die Nachbarschaft durch Geräusche, Dünste, Rauch oder in anderer Weise belästigen, errichtet, eingerichtet oder geduldet werden (Absicherung durch Grunddienstbarkeit).
b) Dem jeweiligen Eigentümer des Grundstücks steht kein Unterlassungsanspruch bei Glockengeläut (Hinweis: Wegen des verfassungsrechtlichen Schutzes des liturgischen Glockengeläutes vgl. Urteil des BverwG vom 7.10.1983 – 7 C 44.81 – JZ 1984 S. 228) und kirchlichen Veranstaltungen auf den in der Nachbarschaft liegenden Grundstücken des Verkäufers zu (z.B. bei Gemeindefesten im Freien mit Posaunenchor, Benutzung des Spielplatzes des Kindergartens). Absicherung durch Grunddienstbarkeit oder beschränkte persönliche Dienstbarkeit. (Hinweis: die Eintragung einer solchen Dienstbarkeit ist zulässig. Vgl. Beschluss des LG Lüneburg vom 19.05.1987 – 4 T 74/87 – mit Hinweis auf Beschluss des OLG Celle vom 27.02.1958 – 4 Wx 44/57 – NJW 1958 S. 1096).
Lage:
Die Stadt Quakenbrück, Mittelpunkt des Artlands, liegt im Landkreis Osnabrück an der Hase, ca. 45 km nördlich der Stadt Osnabrück und umfasst eine Gesamtfläche von rd. 18 km². Quakenbrück ist Verwaltungssitz der Samtgemeinde Artland, die aus den Mitgliedsgemeinden Badbergen, Menslage und Nortrup sowie der Stadt Quakenbrück besteht.
Samtgemeinde: rd. 24.200 Einwohner (Stand 31.03.2024) Stadt: rd. 13.900 Einwohner (Stand 31.03.2024)
Die Stadt Quakenbrück ist Mittelzentrum mit den entsprechenden Infrastruktureinrichtungen.
Allgemein- und weiterbildende Schulen und Kindergärten sowie Sport- und Freizeiteinrichtungen sind in der Stadt Quakenbrück vorhanden.
Der Bahnhof Quakenbrück liegt an der Bahnstrecke Oldenburg–Osnabrück und ist an das überregionale Schienennetz angeschlossen.
Die Bundesstraße B 68 durchquert die Stadt Quakenbrück in Nord-Süd-Richtung. Die Bundesautobahn A 1 ist ca. 15 km von der Stadt entfernt.
DETAILS
- Art: Gebäude
- Grundstück: 579 m²
- Objektpreis: 210.000 € VHB
- Bundesland: Niedersachsen
- Standort: 49610 Quakenbrück
ANSPRECHPARTNER/KONTAKT
- Kirchenamt Osnabrück
- Herr Matthias Funke
- 0541/94049-650
- matthias.funke@evlka.de
